Là où le mur s’efface, le ciel entre.
La ferme oubliée s’ouvre à nouveau,
portée par la lumière, elle entame une nouvelle vie.
Un lieu renaît, en dialogue intime avec le paysage.
Chaque espace devient une invitation à l’évasion.

la continuité du sol intérieur vers l’extérieur: avant/après
les deux façades principales: avant/après
plan rdc
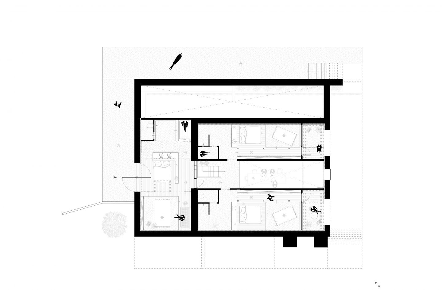
plan r+1
partir d’une tuile récupérée de l’ancienne toiture pour créer la matérialité: pigmentation du bloc avec poudre de tuile poncée
Contact étudiant

Contacter l’étudiant

Remplissez le formulaire ci-dessous pour prendre contact avec l'étudiant. Votre message sera envoyé directement sur son adresse e-mail.