Mon intention première est de redynamiser la zone de la Porte d'Italie en la rendant plus vivante et attrayante, afin d'offrir un espace agréable et convivial.
Pour moi, le skatepark est un lieu de rassemblement diversifié, réunissant des profils variés. Un tel équipement n'existe pas à Toulon, il pourrait constituer un moyen de revitaliser cette zone.
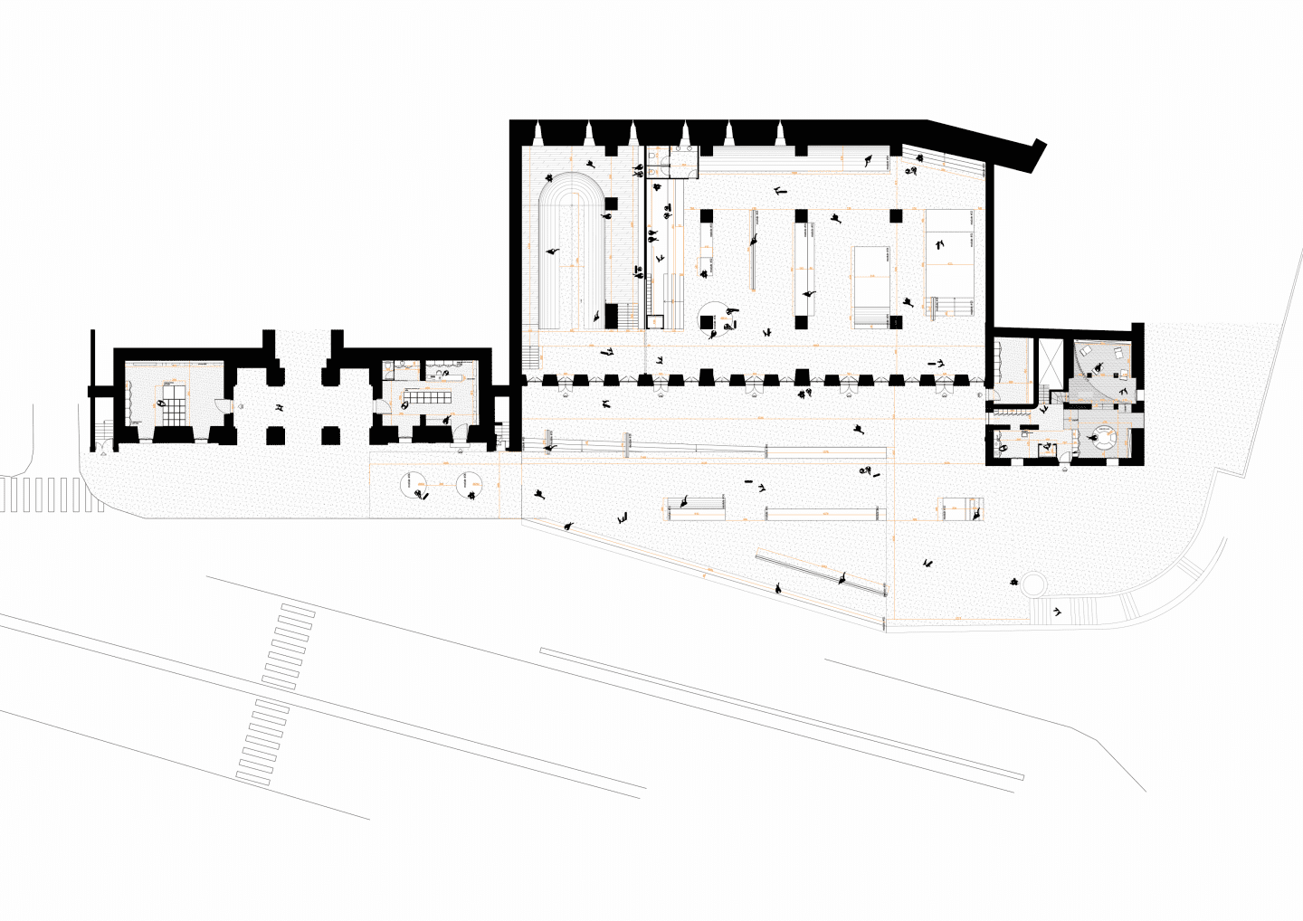
Je choisis d’analyser le skatepark pour comprendre ce qui en fait un lieu de rencontres et d’échanges. Il devient ainsi le point de départ de ce tiers-lieu, dédié aux interactions et aux rencontres.
Je m’inspire des modules du skatepark pour concevoir les espaces communs.
Un travail autour du bois, de la mousse de polyuréthane recyclée et du réemploi de gravats du chantier des casemates constituent des éléments clés de ce projet.