Localisation du quartier des Usines à l’Ile d’Yeu, à proximité de Port Joinville (port principal)

OYA

À l’Île d’Yeu, l’ancienne usine de poisson renaît en halle vivante, dédiée au marché et aux échanges. Ancrée dans l’héritage maritime, elle réactive la mémoire du quartier des Usines.

Vue intérieure en début de journée, montrant l’espace de la poissonnerie avec son comptoir et les chariots destinés aux commerçants du marché.
Vue intérieure en début de journée, dévoilant une partie de la mezzanine.
Vue intérieure en fin de journée depuis la mezzanine de la halle, offrant un panorama direct sur la mer.
Vue de la façade Est donnant sur la rue du Quai de la Chapelle à, Île d’Yeu, face au parking et à la jetée où l’on peut s’arrêter pour se détendre.
Vue Sud-Ouest du bar, situé à proximité de l’entrée.
Vue Nord-Est du bâtiment depuis la terrasse surmontée d’une pergola.

Axonométrie de la poissonnerie

Détail du meuble situé au milieu du comptoir de poissonnerie permettant de conserver le poisson sans glace, pour une solution plus écologique.

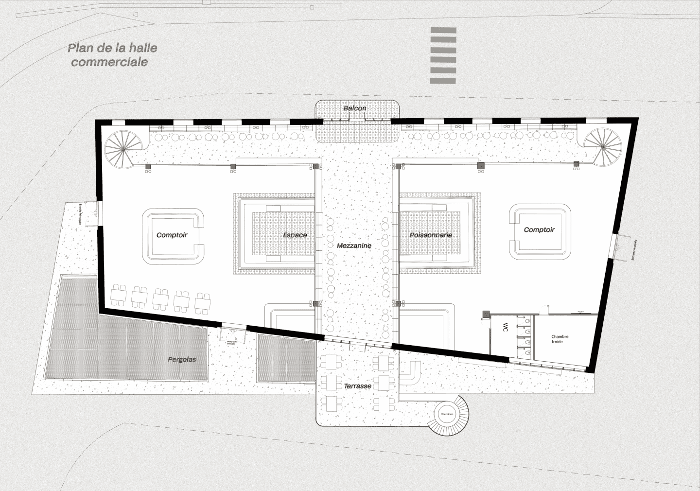
Axonométrie générale illustrant l’ensemble du bâtiment, les ouvertures en façade ainsi que ses différentes entrées.
Axonométrie ouverte mettant en lumière l’organisation du bâtiment autour de son axe principal, la mezzanine.
Coupe longitudinale du bâtiment, traversant l’axe central de la poissonnerie et dévoilant, en arrière-plan, la mezzanine ainsi que ses escaliers disposés de part et d’autre.
Coupe transversale du bâtiment mettant en valeur le prolongement latéral de la mezzanine de chaque côté.
Contact étudiant

Contacter l’étudiant

Remplissez le formulaire ci-dessous pour prendre contact avec l'étudiant. Votre message sera envoyé directement sur son adresse e-mail.