L’été dernier, je suis retourné à Montréal afin de partir sur les traces des vestiges de l’exposition universelle de 1967, aussi connue sous le nom d’Expo 67. En pleine guerre froide, Montréal avait alors réuni plus de 70 nations sur deux îles artificielles spécialement construites pour l’occasion et accueillit 50 millions de visiteurs.
Offrant une reconnaissance et une ouverture mondiale à la ville, cette exposition a aussi vu naitre de nombreux pavillons à l’architecture avant-gardiste. Certains ont traversé le temps et continuent encore aujourd’hui de nourrir l’imaginaire collectif des Montréalais.
De nombreuses balades sur les îles de l’Expo, aujourd’hui transformées en parc urbain, m’ont permis de réaliser un reportage photographique et sensible sur ces témoins de l’évènement et de me questionner sur leur place au sein du contexte urbain montréalais actuel. Ces réflexions et observations ont été le point de départ de ce projet.
Lors de l’une de ces balades, j’ai eu la chance de pouvoir visiter la Place des Nations, l’ancien épicentre de l’exposition aujourd’hui abandonné. Ce lieu hors du temps m’a particulièrement marqué par son ambiance de ruine dystopique bucolique. J’ai rapidement compris que mon projet de diplôme servirait à valoriser ce site exceptionnel.
Située sur la pointe sud de l’île Sainte-Hélène, entre Montréal et sa banlieue sud, la Place des Nations est accessible de la ville par le pont de la Concorde qui passe juste à côté, mais aussi par la station de métro Jean-Drapeau. Entourée par le Fleuve Saint-Laurent et par le Lac des Cygnes, la place est enclavée dans un coin du parc.
A l’époque, la place a été conçue comme l’un des emblèmes de l’exposition. Son architecte, André Blouin, voulait créer une place où les différents peuples pourraient se rassembler. Pendant l’évènement, elle accueillait chaque jour des discours officiels, des parades et des manifestations folkloriques et culturelles des différents pays.
Malheureusement, tout comme de nombreux pavillons sur les îles, la place est peu à peu tombée en ruine pendant la crise financière des années 1980. Plusieurs projets de réhabilitation ont vu le jour ces dernières années, mais aucun n’a vu le jour par manque de financement et de conviction politique.
Pour ancrer cette réhabilitation patrimoniale dans le contexte actuel et mieux comprendre ses enjeux, j’ai rencontré le directeur des opérations du Parc Jean-Drapeau ainsi que des historiens. Ces entretiens m’ont permis de fixer des objectifs patrimoniaux afin de respecter l’intégrité et l’identité historique du site.
En plus de préserver les éléments subsistants, j’ai souhaité réintroduire des éléments disparus, comme les mâts de drapeau et les bassins. J’ai aussi voulu valoriser l’état actuel en gardant la biodiversité ayant colonisé les buttes des pavillons. De plus, j’ai voulu faciliter l’accès au site en redynamisant les voies de circulation.
Mon objectif principal était de créer un programme pouvant offrir aux Montréalais comme aux touristes une Place des Nations animée et vivante qu’ils peuvent redécouvrir toute l’année, notamment grâce à des programmations permanentes et ponctuelles venant s’intégrer et compléter le calendrier évènementiel du parc.
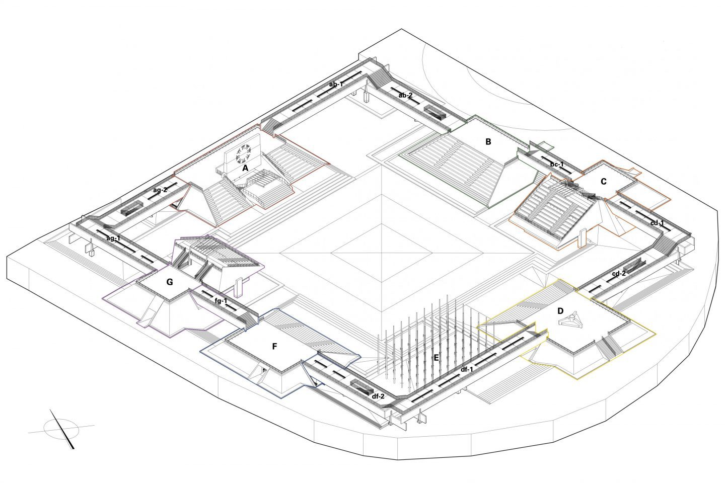
La place est organisée autour d’une plaza centrale carrée de 55 mètres de côté, entourée de 6 pavillons pyramidaux formant les gradins et entourés de talus végétalisés. De grandes passerelles suspendues en bois de sapin lamellé-collé relient les terrasses de chaque pavillon et ceinturent la place.
Pour créer une programmation viable tout au long de l’année, il était important de réfléchir les usages de la place en fonction des saisons.
Par exemple, l’hiver, la plaza centrale serait transformée en patinoire où pourraient se dérouler des rencontres sportives ou des évènements interactifs.
Pendant les saisons intermédiaires, la place pourrait être utilisée pour des concerts, de activités scolaires et des manifestations culturelles tels que des festivals d’art ou des performances de cirque et de danse.
Enfin, l’été, la place serait utilisée comme site annexe des différents festivals et évènements établis sur l’île tels qu’Osheaga, le Piknik Electronik ou encore la F1.
Tandis que les extérieurs de la place se réinventent donc au fil des manifestations éphémères, j’ai pensé les 6 pavillons ceinturant la place pour pouvoir accueillir les programmations permanentes tout en pouvant toutefois s’adapter aux différents usages de la place.
Ainsi, ces derniers sont consacrés à raconter l’histoire du site, à célébrer la diversité culturelle de la ville et à dévoiler la richesse de sa scène artistique.
Pavillon A : Espace d’interprétation de l’Expo 67
Situé près de l’entrée principale de la place, le pavillon A accueille un espace d’interprétation de l’histoire du site et de l’évènement qui l’a vu naître. Il est doté d’un espace d’accueil, d’une exposition permanente et d’une salle de projection pouvant aussi être adaptée en salle de conférence.
Pavillon C : Restaurant
Nichée sous les gradins suspendus du pavillon C, la salle vitrée du restaurant offre une vue panoramique sur la place et ses alentours. Chaque saison, un chef étranger réinvente le menu en s’inspirant de sa cuisine traditionelle. L’été, un stand de street food et une terrasse extérieure permettent aux visiteurs de profiter du plein air.
Pavillon D : Centre d’échange culturel
Dans la lignée de la vocation initiale de la Place des Nations, le centre d’échange culturel du pavillon D vise la rencontre et le partage des cultures des différentes communautés de Montréal et ses environs. Différents cours de danse, musique, sport, artisanat, cuisine, etc. sont organisés dans ses espaces modulaires.
Pavillon G : Galerie d’art
Installées dans les intérieurs et sur la terrasse du pavillon G, les expositions de la galerie d’art visent à mettre en lumière les scènes artistiques émergentes et autochtones Montréalaises. Conçu comme une boite modulable, ce pavillon polyvalent peut aussi facilement être transformé en espace évènementiel ou en pop-up store.
Un mobilier sur mesure
Inspiré des formes de l’architecture singulière de la Place des Nations, une collection de mobilier intérieur et extérieur vient prolonger l’expérience du lieu. Cette gamme de mobilier a aussi pour ambition de réutiliser le bois des anciennes passerelles et peut facilement être réparé dans l’atelier du pavillon B.


