RÉPARER SANS EFFACER
Situé sur un plateau végétalisé de 13 ha à Bouaké, en Côte d’Ivoire, ce campus héberge écoles, dortoirs et logements dans des volumes bétonnés, mal adaptés au climat tropical humide.
Ce projet puise dans les ressources vernaculaires et les savoir-faire locaux pour réinventer un campus adapté à son climat.
Voyage : Entre Abidjan, Bouaké & Korhogo
En avril, je me suis rendue en Côte d’Ivoire pour m’imprégner de la culture et rencontrer celles et ceux qui façonnent les savoirs du quotidien.
Ce projet est une ode aux matières locales et aux gestes transmis, nourri par les échanges avec des potiers, tisserands, teinturières… autant de mains qui racontent un territoire.
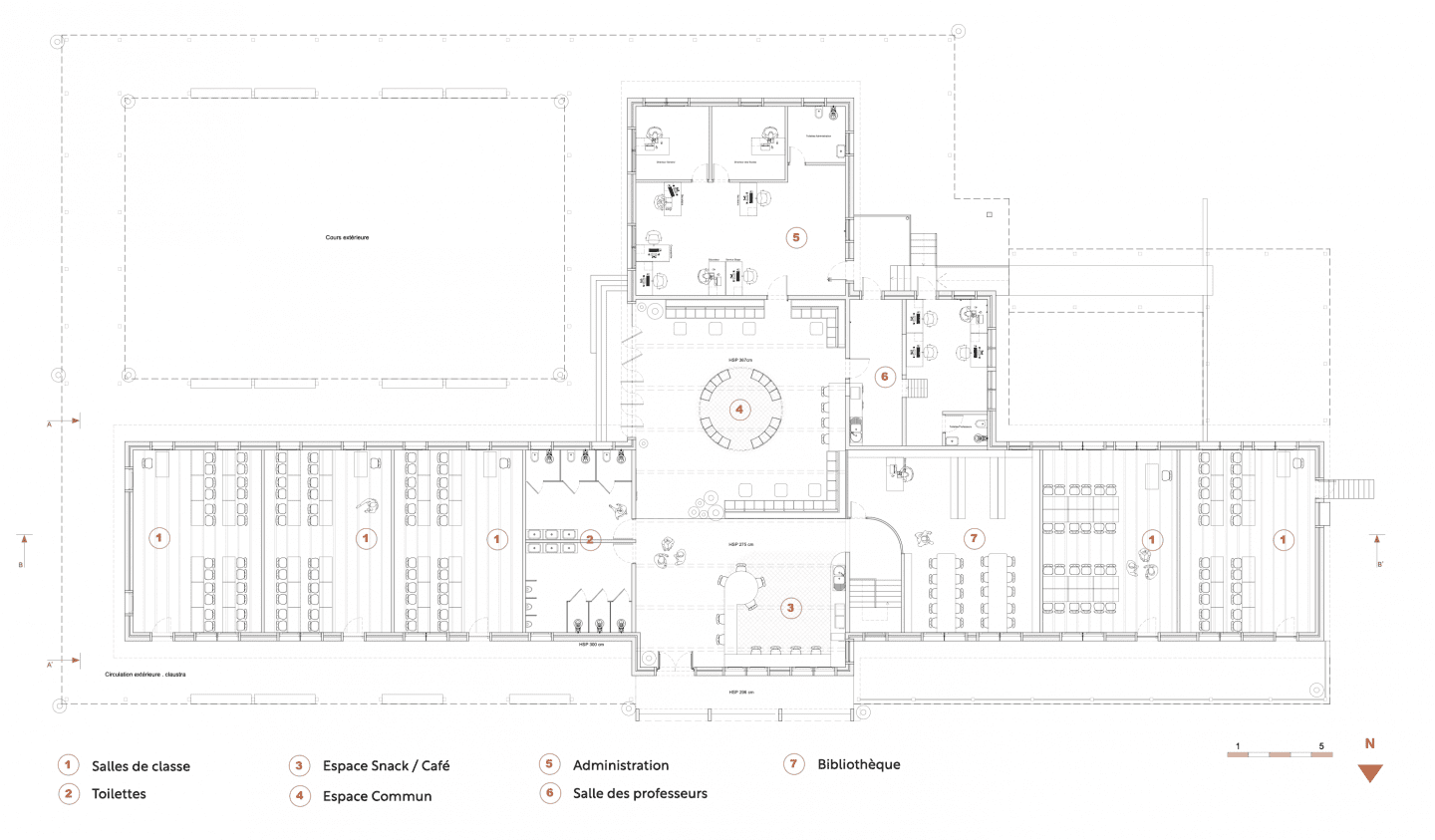
PRINCIPES ARCHITECTURAUX TROPICAUX
Circulations Extérieures
Les galeries extérieures ombragées filtrent le soleil et protègent la façade des intempéries, réduisant ainsi les apports de
chaleur et l’usure provoquée par la pluie.
Double Toiture
La toiture supérieure agit comme un bouclier solaire, interceptant les rayons du soleil. Une lame d’air entre les deux toitures empêche la chaleur de se transmettre à la couverture inférieure, assurant un confort thermique maximal.
Double Mur
Créer une protection du mur existant (béton) par une seconde enveloppe en briques de terre compressée (BTC), assurant une isolation thermique extérieure. Cette paroi limite l’apport de chaleur en journée, réduit les besoins en climatisation et facilite l’évacuation naturelle de l’humidité.
Ventilation
Chaque salle traversante est dotée d’ouvertures sur ses deux façades, assurant un renouvellement permanent de l’air. Des jalousies en partie haute évacuent l’air chaud sous plafond et le remplacent en continu par de l’air frais.
La Salle de Classe
L’espace Commun
L’espace Commun, inspiré de la cour centrale d’un village, offre un lieu de rencontre, d’échange et de travail pour les étudiants et les professeurs.
Le savoir-faire des potiers de Tanou-Sakassou est mis en valeur à travers des briques décoratives intégrées au sol et des amphores utilisées pour végétaliser l’intérieur.
L’installation de portes rotatives à ouvertures afin de permettre une aération constante des espaces de l’université.
Des amphores, disposées sous les gouttières, collectent l’eau de pluie pour irriguer le campus pendant la saison sèche.
Stand de Diplôme


