Yannis Negrel

Tiers-lieu créatif de Toulon

situé au niveau de la Porte d’Italie

Le lien & la porosité

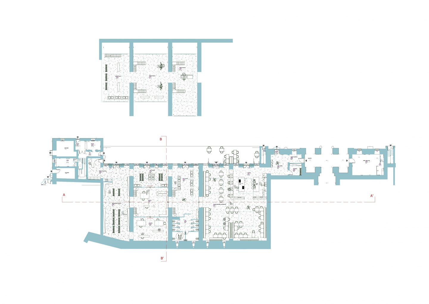
plan général RDC du bâtiment
élévation façade du bâtiment
atelier sale fermé
ateliers communs mezzanine
terrasse extérieur cuisine partagée
coupe AA’ du bâtiment

Mobiliers

La Chaise, le Tabouret bar, la Table et le Crochet

Un ensemble polyvalent qui se complète les uns avec les autres, créant la vie et le lien entre tous les utilisateurs et résidents du tiers-lieu.

Contact étudiant

Contacter l’étudiant

Remplissez le formulaire ci-dessous pour prendre contact avec l'étudiant. Votre message sera envoyé directement sur son adresse e-mail.