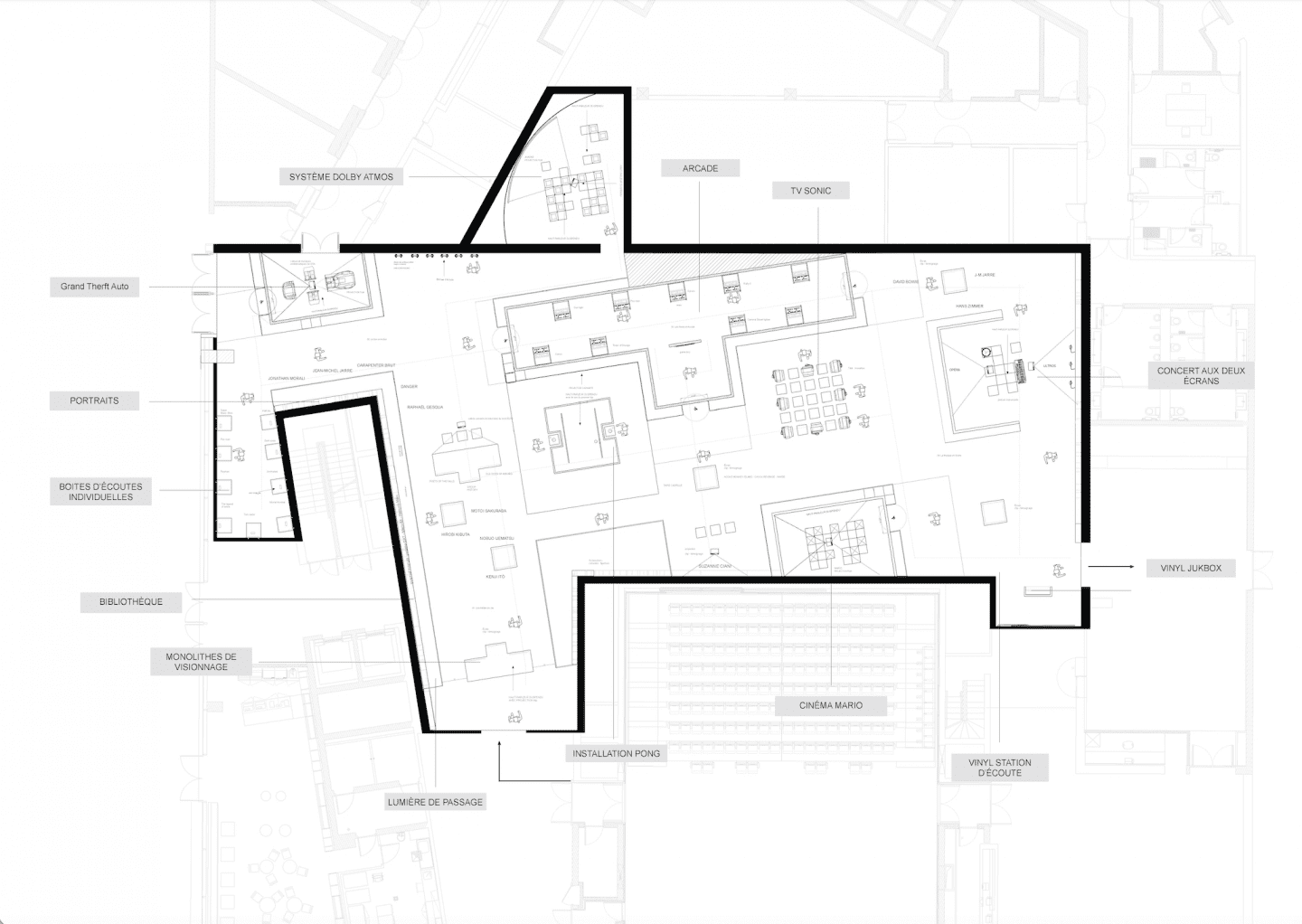
L’exposition 'Symphonie des Pixels' propose un voyage immersif dans l’univers sonore du jeu vidéo, structuré en quatre zones. L’espace s’organise autour d’une grille de pixels au sol, déclinée en volumes extrudés façon Tetris. Ces formes dessinent des alcôves qui rythment le parcours et marquent les transitions. Plongé dans la pénombre, l’environnement se révèle par touches de rouge, vert et bleu – les couleurs RVB – qui évoquent la composition des pixels. Ce contraste visuel, allié aux sons, guide le visiteur. L’exposition devient alors une expérience sensorielle où architecture, lumière et son se répondent, au cœur même de l’univers vidéoludique.