« Plus je vais, plus je suis persuadé que l’on ne peut arriver à une forme d’art belle sans une forte étude de la nature. J’ai dit étude et non copie. Se servir du modèle, de la nature, et non pas être dominé, conduit par son modèle. »
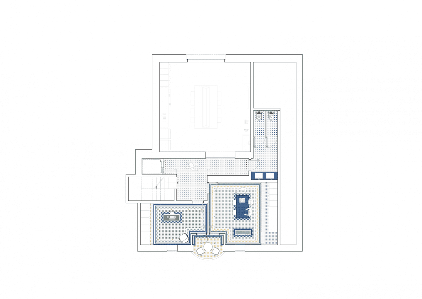
La Villa Théo a été réhabilitée en centre d’art, mêlant expositions et atelier de peinture ouvert au public, dans l’esprit du lieu d’origine. Le sol devient un fil conducteur : un calepinage de carreaux en grès cérame de 5 × 5 cm, pensé comme une évocation du pointillisme présent dans l’œuvre de Théo.
Chaque espace est associé à une toile peinte au Lavandou ou dans ses environs : les motifs de carrelage sont créés en lien avec ces tableaux, en cohérence avec l’usage de chaque pièce.
Un bandeau encadre chaque zone, créant des transitions douces vers le mobilier, tout en guidant la circulation.
Les cloisons ont été partiellement ouvertes pour agrandir l’espace, mais le carrelage en trace les contours, suggérant un parcours libre et sensible à travers l’univers du peintre.


