Les intentions
La répartition du commissariat et sa mise en forme
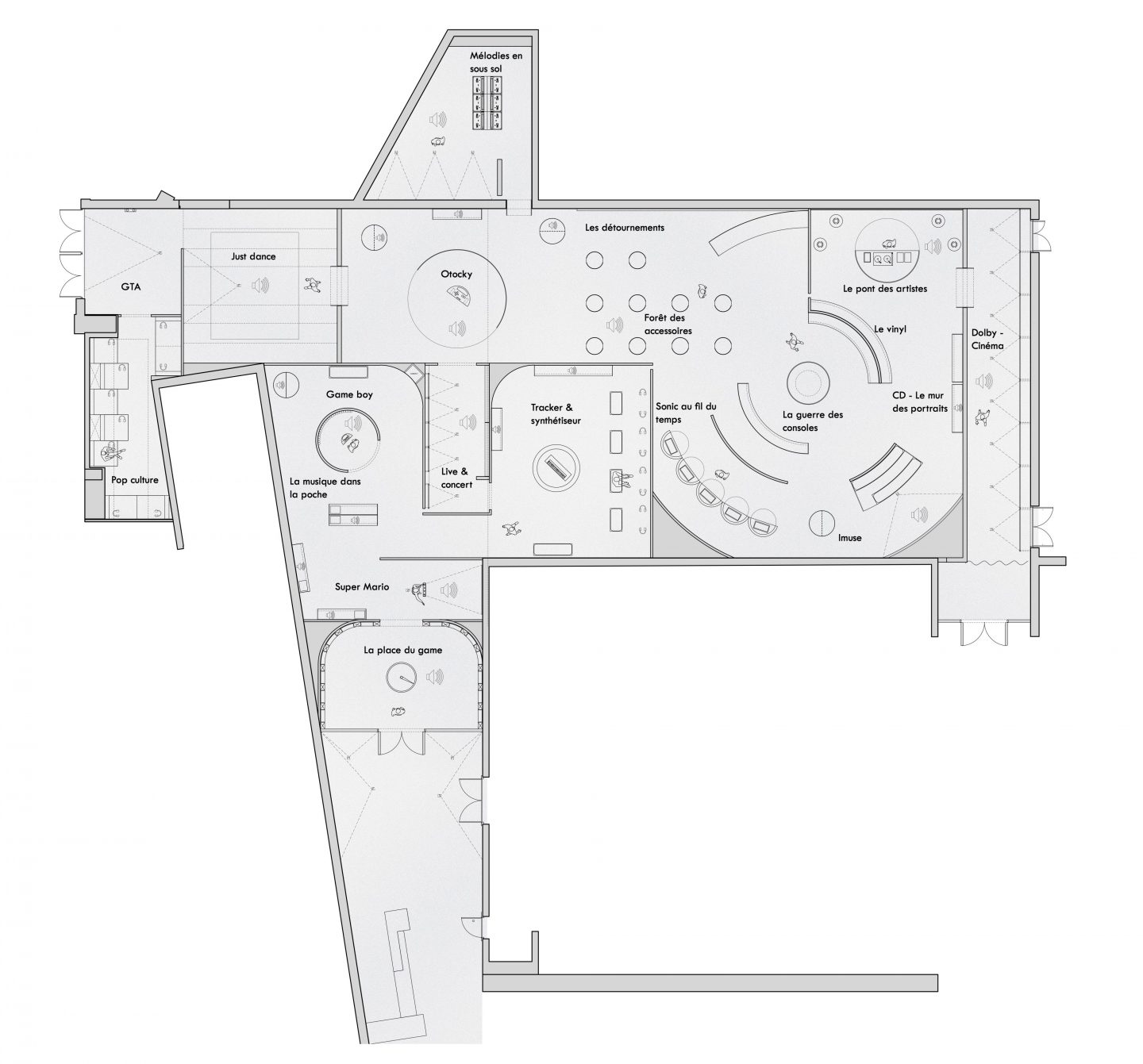
Les espaces avec un son élevé alterne avec des espaces au son plus bas comme des dispositifs d’écoute individuelle avec casque. L’autre critère important dans la scénographie est la répartition des espaces immersifs le long de l’exposition qui sont des lieux d’effervescence, et des espaces plus calmes où le visiteur peut s’asseoir.
évolution et techniques de création
La première partie concerne l’évolution et la création de la musique de jeux vidéo. Celle-ci comprend « Le game populaire » qui réunit les thèmes musicaux les plus connus. « Super Mario », montrant l’évolution du personnage iconique à travers le temps.
« La musique dans la poche », « Live et concerts » permettant d’expérimenter cette musique de la plus petite à la plus grande échelle. Enfin, « Du tracker au synthétiseur » expliquant les techniques de création et de production de la musique de jeu vidéo.
Let’s Play
La deuxième partie partie se nomme « Let’s Play ». Celle ci est consacrée au rapport du corps, du geste au jeu vidéo et sa musique. Tout d’abord la musique générative avec comme exemple « Otocky », puis la salle de danse avec le jeu iconique « Just Dance » et enfin « Mélodies en sous-sol » une immersion dans la salle d’arcade.
Un autre regard
La troisième partie concerne « Un autre regard » sur la musique de jeu vidéo. Dans un premier temps, « Les détournements » s’intéresse aux clips dont la musique est inspirée de jeux vidéo.
Au centre de l’espace « La guerre des consoles » aborde une perspective plus commerciale. « Imuse » permet de comprendre le système de hooks. Enfin, « Cinéma, Dolby » montre le rapport avec le cinéma.


