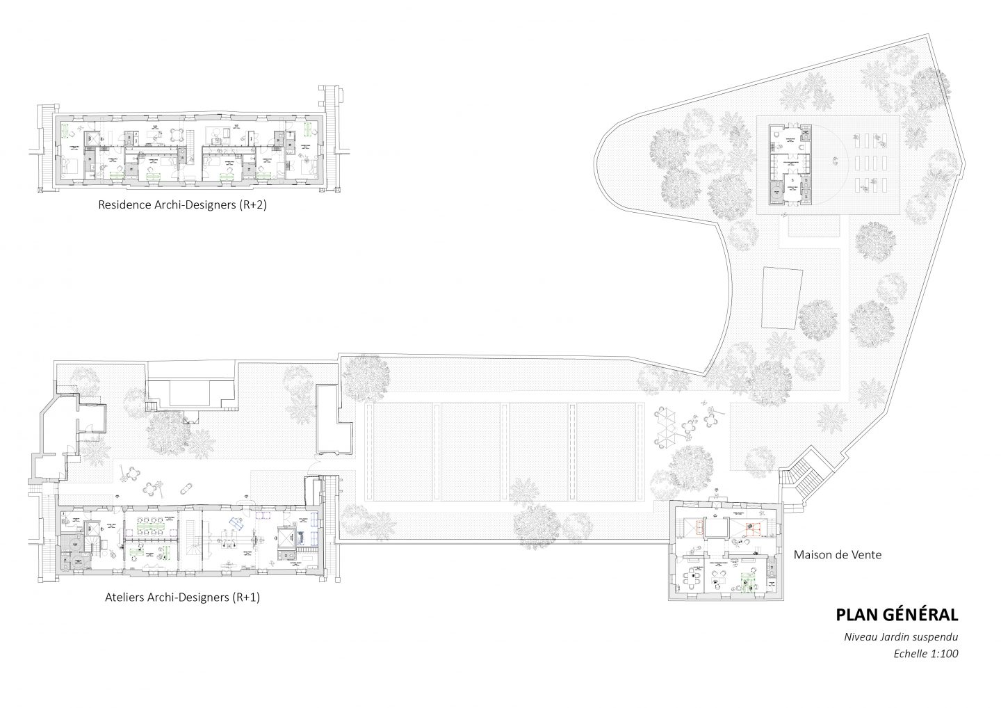
Séquencer les espaces horizontalement et verticalement, créer des ouvertures entre les bâtiments pour mettre en perspective et fluidifier la circulation des personnes, des matériaux et des œuvres articule notre projet.
Penser ce système comme circulaire pour faire fonctionner des pôles d’activités corollaires : la résidence d’architectes-designers opérant sur le réemploi, le centre de réception et de tri, la mise en archives et stockage, le centre d’expertise, et la mise en vente par enchères des “éléments” archivés ou créés sur place.


